За дизайн-проектом к нам обратилась девушка. Она хотела сделать свою новую квартиру максимально расположенной к отдыху, учитывая, что проводит много времени на работе 🤓
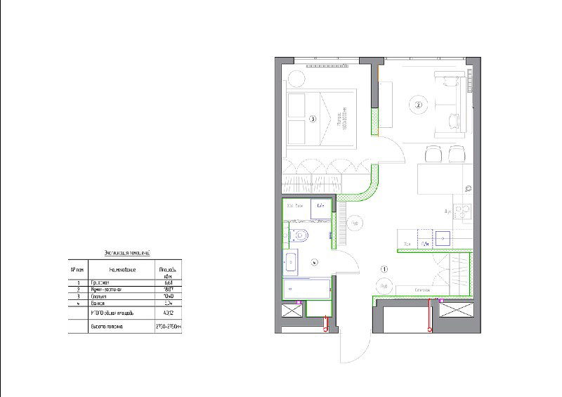
Первым шагом был снос перегородки в прихожей, благодаря которому нам удалось организовать вместительный гардероб и уютную прихожую зону👌
Присоединив теплую лоджию мы расширили небольшую кухню-гостиную и разместили там полноценную кухню и зону гостиной с ТВ👌
Два маленьких санузла превратили в один большой! И предусмотрели в нем все необходимое, включая постирочный блок, спрятанный за шторками (мой излюбленный прием, берите на заметку!)🔥
Задачей под звездочкой было органично вписать пианино заказчицы. Инструменту нашлось место в коридоре близ кухни👌
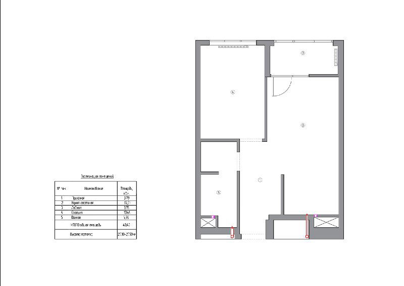
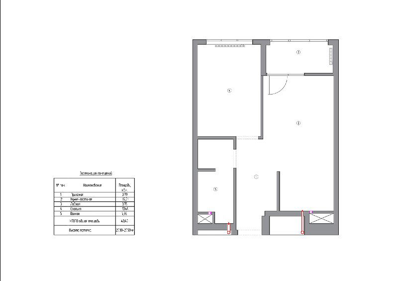
👀В итоге получилась прекрасная планировка! Подробнее о том, как мы ее разрабатывали, смотрите в видео по ссылке!
______
🌐 www.gradiz.ru
📩 info@gradiz.ru
📱8-912-224-81-11



