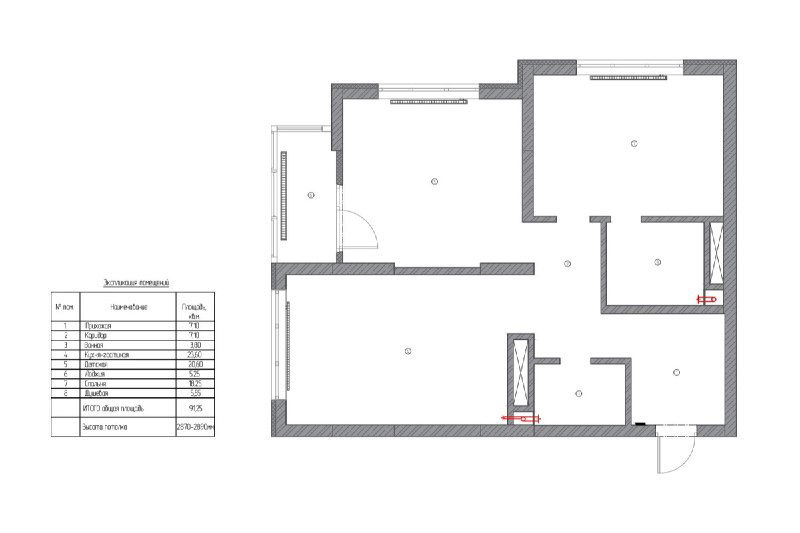
Пространства кухни-гостиной в исходной планировке от застройщика было недостаточно, чтобы разместить весь функционал, который нужен заказчику. В связи с этим мы предложили расширить общее пространство за счет детской комнаты 👌🏻
После перепланировки здесь поместилась полноценная диванная группа, кухня с островом и столовая зона на лоджии, откуда открывается прекрасный вид из окна! Кроме того, мы немного уменьшили ванную комнату, примыкающую к мастер-спальне, чтобы получить место для хозяйственного блока со стиральной машиной в коридоре 👍🏻
А вы хотели бы столовую зону на лоджии? 😏
👀Подробнее о проекте узнайте в портфолио на нашем сайте!
_____________
🌐 www.gradiz.ru
📩 info@gradiz.ru
📱8-912-224-81-11




