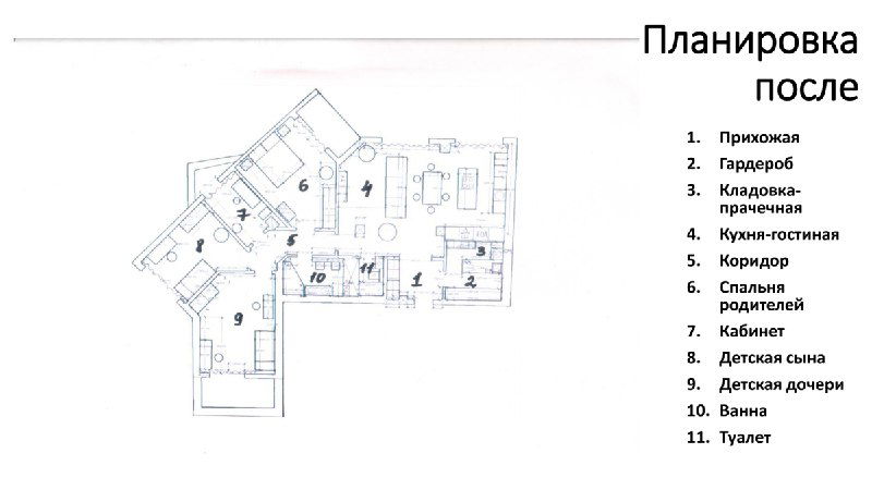
Ирина разрабатывала интерьер для себя и своей семьи, проделав впечатляющую работу с планировкой. В изначально «вроде бы нормальной» планировке от застройщика ей удалось создать:
- Просторную кухню-гостиную
- Уютный кабинет с выходом на балкон
- Удобную постирочную зону на месте кладовой
Вдохновением для проекта послужил живописный вид на Женевское озеро во французском городке Ивуар. Через цвет, формы и фактуры Ирина передала атмосферу солнечного утра в одном из самых цветущих уголков Европы!
В интерьере гармонично сочетаются:
- Плавные и угловатые линии,
- Глянцевые и матовые текстуры,
- Насыщенные и нежные оттенки.
Вы только представьте, сколько труда и души Ирина вложила в этот проект! Если вам нравится результат, поддержите её ❤️
Кстати, следующий поток курса стартует 1 октября! Записывайтесь по ссылке, чтобы создавать такие же атмосферные проекты! _____________
🌐 www.gradiz.ru
📩 info@gradiz.ru
📱8-912-224-81-11











