Проект создавался для изысканной состоявшейся дамы! В общении с ней вспоминались тонкие, изящные работы Альфонса Мухи! На основе стиля Мухи мы оформили проект, а главным акцентом сделали элементы Ар-нуво✨
ДО
- • студия 37,4 кв.м.
- • 2 окна
- • квадратная планировка
- • высота потолков 3,1 м.
ПОСЛЕ
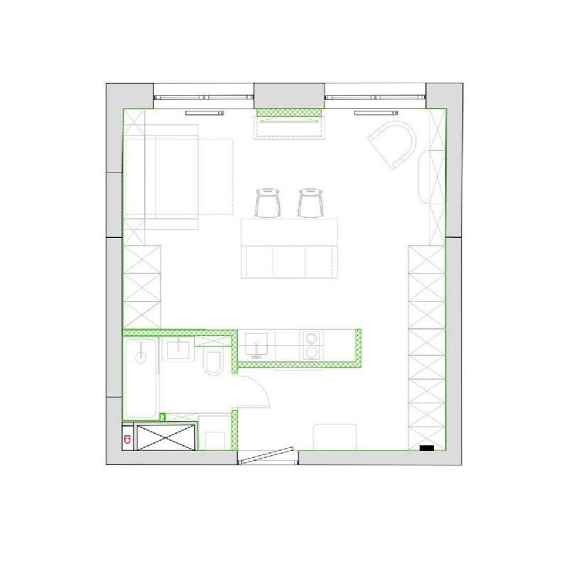
- • санузел и зону прихожей разделили перегородкой от основной части квартиры
- • в центре квартиры расположили кухню с островом! Она разделяет пространство вокруг себя на гостиную-спальню и кабинет
- • на одной оси с кухней и островом разместили великолепный чёрный камин и телевизор
- • в зону спальни поместили кровать-трансформер, чтобы спальня всегда могла стать гостиной
- • системы хранения в квартире 38 кв.м. заняли 4 кв.м.! И это только самые большие из них, хранения нужно было много
Проект покажет, как может быть актуален Ар-нуво😏
_________________
🌐 www.gradiz.ru
📩 info@gradiz.ru
📱8-912-224-81-11



