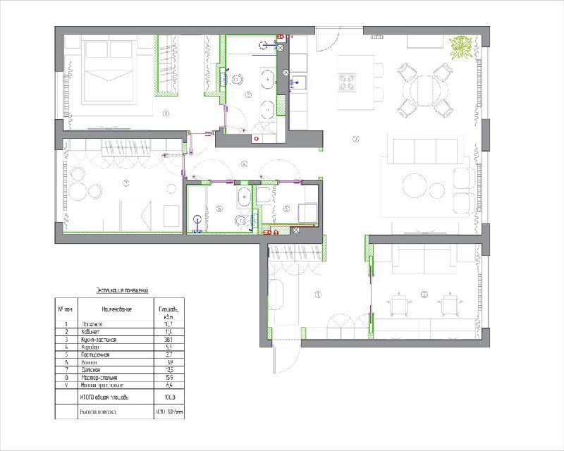
Изначальная планировка в ЖК Брусника в Академическом была довольно удачной: в ней предусмотрены гардероб в прихожей, постирочная и две ванные комнаты, одна из которых расположена рядом со спальней, что очень удобно!
Однако мы внесли некоторые изменения: в спальне был организован отдельный гардероб, что позволило создать полноценную мастер-спальню. Также мы расширили прихожую, объединив её с предполагаемым гардеробом от застройщика. Для максимально эффективного использования пространства было решено поменять местами ванную и постирочную, а также немного подкорректировать дверные проемы 👌🏻
В результате получилась гармоничная планировка, спроектированная специально под сценарий жизни заказчиков! 😍
👀 Подробнее о проекте узнайте в портфолио по ссылке!
_____________
🌐 www.gradiz.ru
📩 info@gradiz.ru
📱8-912-224-81-11



