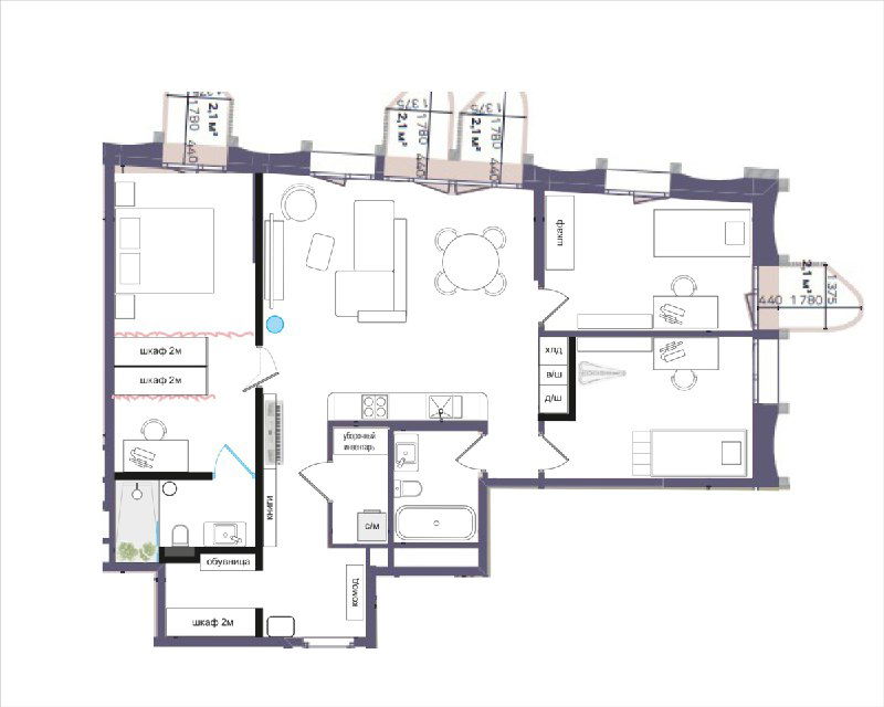
Ко мне за консультацией обратилась семья из 4-х человек с трешкой в ЖК "Союз" в Москве, куда помимо всего прочего нужно было впихнуть фортепьяно и АРФУ! Так что музыканты, это видео для вас!
БЫЛО:
- маленькая прихожая
- небольшой гардероб
- отсутствие кабинета
- маленькая кухня
- недостаточно хранения для музыкальных инструментов
СТАЛО:
- гармоничная прихожая с точкой фокуса
- расширенный гардероб
- мини-кабинет
- полноценная кухня
- гармоничное расположение фортепьяно и арфы
Разбираю все важные моменты планировки: от прихожей до детских комнат, делюсь практическими советами по организации пространства и композиции в видео "ПЛАНИРОВКА квартиры ДЛЯ семьи МУЗЫКАНТОВ с арфой и пианино | Дизайн 3к квартиры в ЖК Союз | Москва"
Смотрите выпуск на всех площадках и поделитесь с друзьями, которые планируют или уже делают ремонт!
➡️ Youtube
➡️ Rutube
➡️ VK __________
🌐 www.gradiz.ru
📩 info@gradiz.ru
📱8-912-224-81-11




