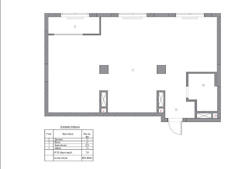
Проект #градиз_восхождение_на_вершину разработан для молодой семьи с новорожденным ребенком и пушистым другом 🐈 Традиционно начну показывать с планировки!
Что хотели заказчики:
- Кухню-гостиную с диваном, ТВ-зоной, акустической системой и раскладным столом
- Макияжный и рабочий столы в спальне для него и для нее
- Детскую комнату «на вырост» с возможностью размещения двух детей
Изначально в квартире не было перегородок, только мокрые зоны, которые остались на своих местах, что дало нам свободу действий!
Что мы сделали:
- Выровняли геометрию прихожей и ванной комнаты
- Расположили вместительный шкаф между колоннами
- Спроектировали комнаты и разместили в них все необходимое
Все запросы клиентов на данном этапе выполнены! О концепции расскажу в следующем посте!
Смотрите проект целиком в нашем портфолио!
🌐 www.gradiz.ru
📩 info@gradiz.ru
📱8-912-224-81-11





Дискуссия