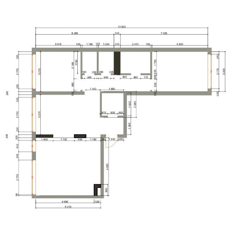
Ко мне за консультацией обратилась семья с ребенком, для которой я сделал планировку трёхкомнатной квартиры для в ЖК Южные кварталы от застройщика Брусника в Екатеринбурге! 🍒
БЫЛО:
- Малюсенькая прихожая
- Странная компоновка кухни-гостиной
- Отсутствие мастер-спальни
- Стиральная машина в ванной
- Два маленьких санузла и одна ванная
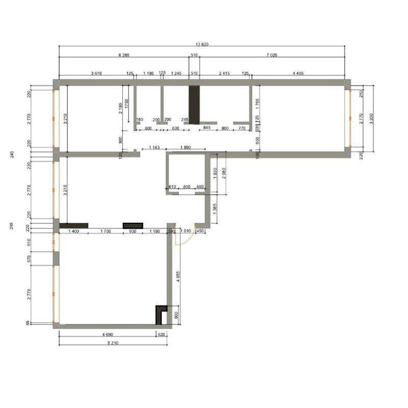
СТАЛО:
- Увеличенная прихожая
- Полноценная кухня-гостиная с островом
- Настоящая мастер-спальня
- Хоз. блок со стиральной машиной
- Отдельная ванна для ребенка
Все нюансы планировки и принципы расстановки мебели я рассказываю в новом видео на всех площадках! Обязательно посмотрите выпуск, и вы поймёте, что планировка "пистолетом" - не приговор!
▶️ YOUTUBE
▶️ RUTUBE
▶️ VK
_________
🌐 www.gradiz.ru
📩 info@gradiz.ru
📱8-912-224-81-11






Дискуссия