Давно не выпускал разборов планировок — исправляюсь 🫡
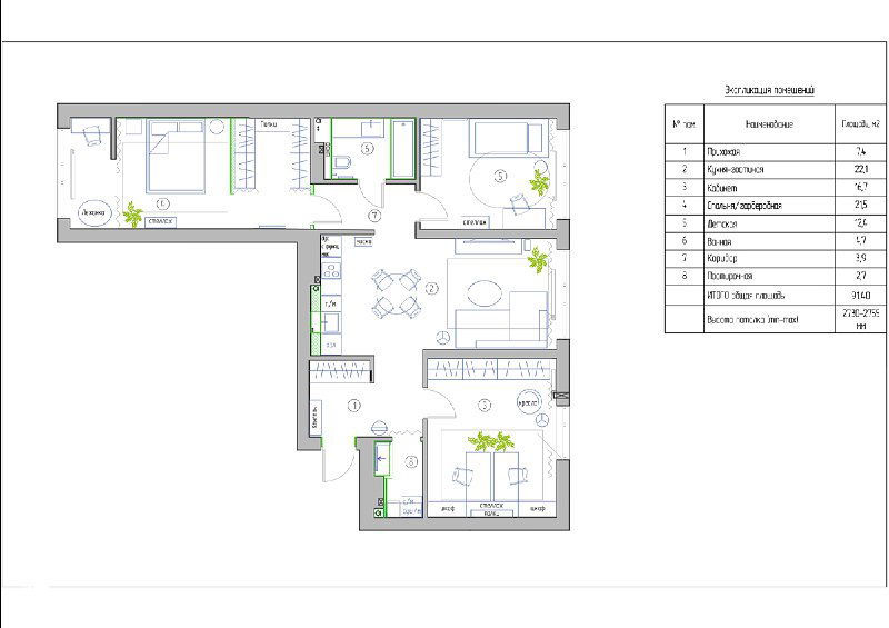
В новом видео я детально разобрал двухкомнатную квартиру и выделил 5 главных ошибок, которые крадут комфорт и метры. Расскажу, как их исправить:
- Ошибка 1: Длинный узкий коридор, который не несет никакой функциональной нагрузки и просто «съедает» площадь.
- Ошибка 2: Нелогичное расположение гостиной, из-за которого сложно организовать уютные и функциональные зоны.
- Ошибка 3: Неудобная кухня, где нарушены базовые принципы эргономики «рабочего треугольника».
- Ошибка 4: Планировка спальни, в которой катастрофически не хватает места для систем хранения.
- Ошибка 5: Отсутствие гардеробной, из-за чего вещи разбредаются по всей квартире и создают беспорядок.
Смотрите видео, чтобы узнать конкретные решения для каждой проблемы! Уже на моих каналах в Ютубе, Рутубе и ВК!
🌐 www.gradiz.ru
📩 info@gradiz.ru
📱8-912-224-81-11



